Manegecomplex

Binnenfaciliteiten

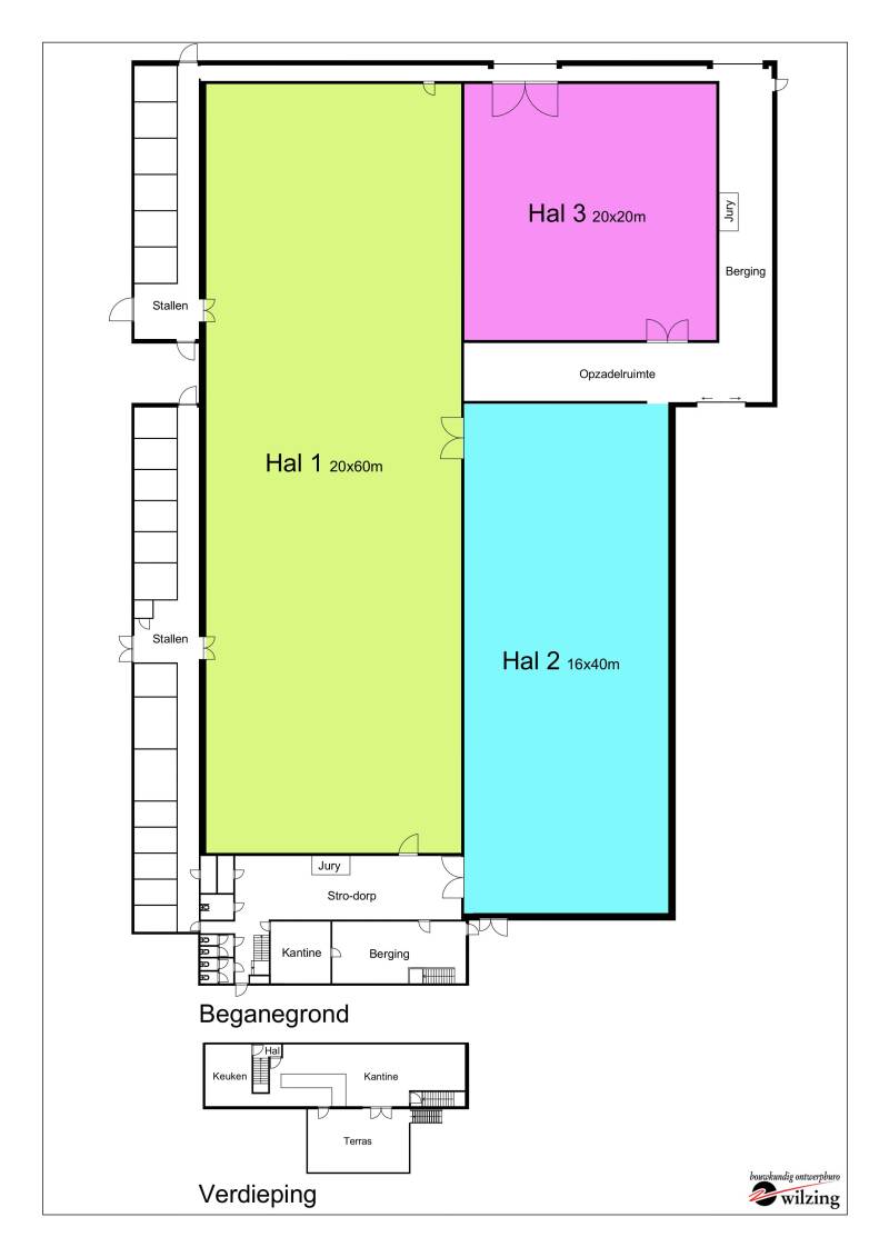
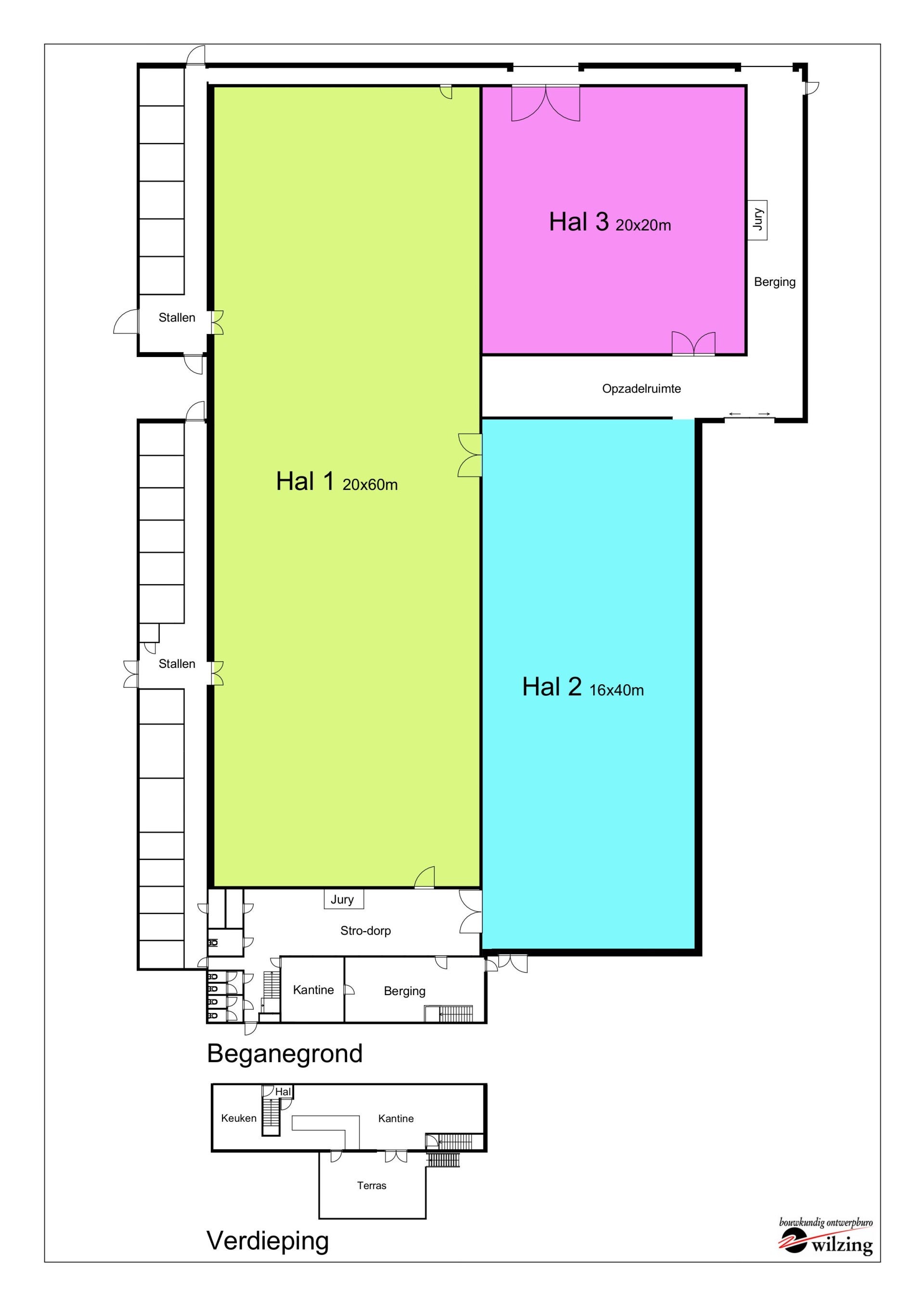
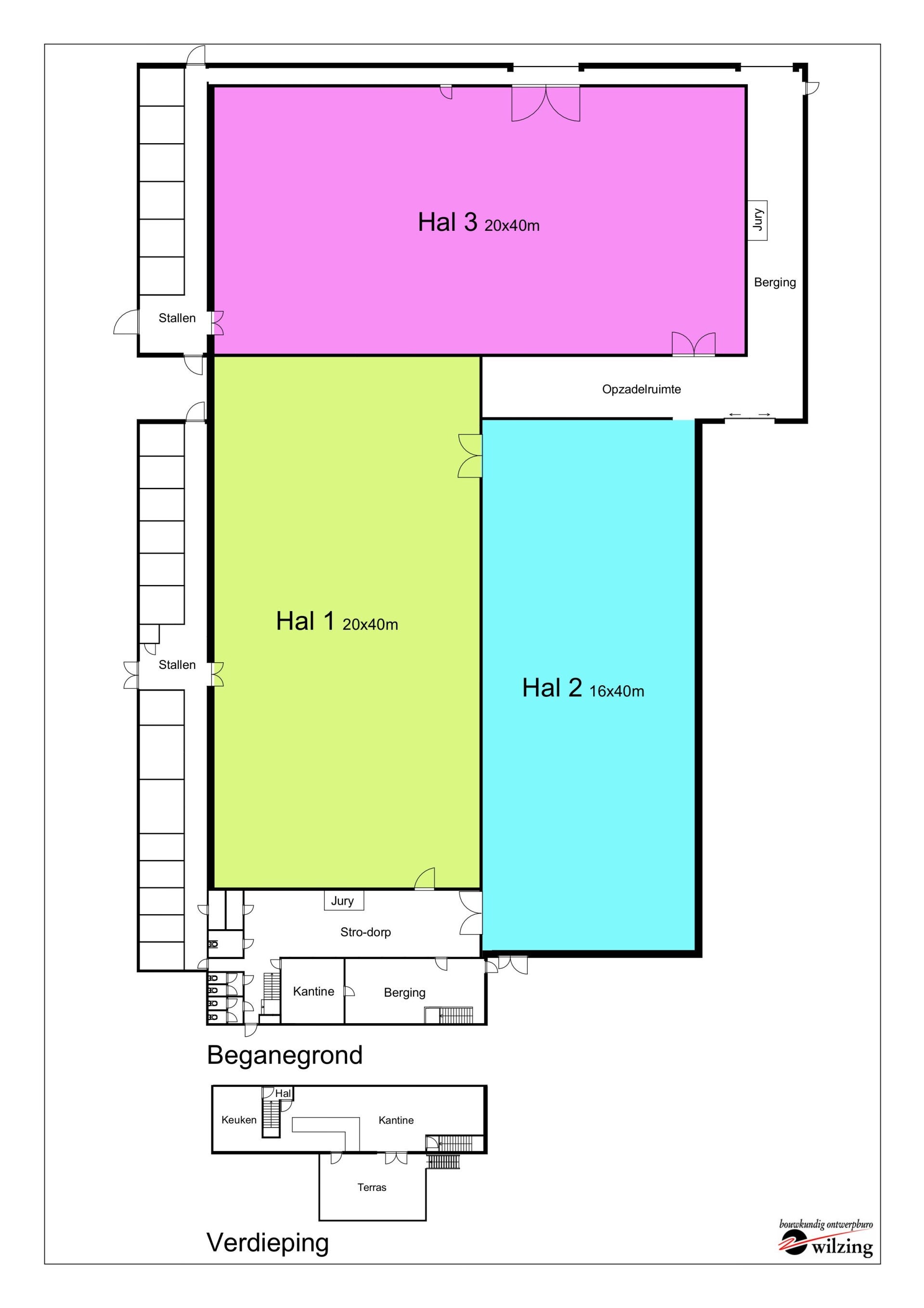
Het betreft één overdekte ruimte met drie afzonderlijke rijhallen.

  • rijhal 1 - 20 x 40 meter
  • rijhal 2 - 16 x 40 meter
  • rijhal 3 - 20 x 40 meter

Aanpassing van de indeling bij grotere evenementen.

  • rijhal 1 - 20 x 60 meter
  • rijhal 2 - 16 x 40 meter
  • rijhal 3 - 20 x 20 meter

  • kantine met uitzicht over alle rijhallen
  • stallen voor paarden en pony's
  • strodorp met Tikkie Bar
  • rolstoeltoegankelijk toilet


Buitenfaciliteiten

  • vanaf het dakterras uitzicht op buitenbak 20x40 meter en longeercirkel
  • buitenbak 20 x 40 meter
  • buitenbak 43 x 60 meter met eb en vloedbodem (in aanleg)
  • longeercirkel 
  • picknickbanken met Tikkie Bar
  • paddocks
  • ruim parkeerterrein


Evenemententerrein

  • directe ligging aan het manegeterrein 
  • regelmatig wordt een oefenparcours opgebouwd
  • diverse paardenevenementen 
  • weide voor paarden
  • parkeren bij grote evenementen
  • terrein te huur bij Stichting Beheer Evenemententerrein

 
Paardensportplatform

Manegevereniging

  • recreatief rijden
  • gebruik van manegepaard of pony
  • mogelijkheid met eigen paard of pony

Paardensportvereniging

  • gericht op wedstrijdsport
  • voor ruiters met een eigen paard of pony

Menlessen

  • gebruik van eigen paard of pony

Bakkaart voor vrij rijden

  • vrij gebruik van alle faciliteiten
  • alleen toegankelijk voor leden

Evenementen

  • diverse evenementen
  • voor leden, en vaak ook toegankelijk voor niet-leden


Midden in het schitterende natuurgebied Westerwolde geniet je van alle faciliteiten én de mogelijkheid om heerlijk in de natuur te rijden.


Stap gerust binnen tijdens onze lessen, wedstrijden of evenementen – de deur van de manege staat altijd open!

Plattegrond